
Projet Pressoir
Agencement d'un sous-sol de 50m²

Client : Particulier
Lieu : Ambérieu-en-Bugey (01)
Formule : Origine
Date : Janvier 2026
Longtemps relégué à un usage de stockage et de stationnement, le sous-sol de cette maison n’exprimait pas encore son potentiel.
Les 50 m² ont été réinventés comme un prolongement naturel de l’espace de vie de l’étage, pour offrir un lieu confortable et habité, révélant l’histoire et le caractère de cet ancien pressoir.



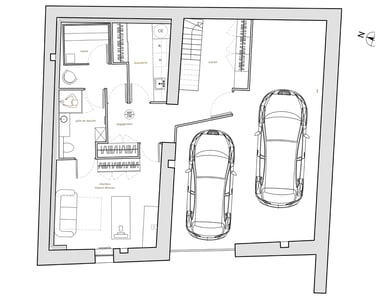
Plan du projet



L’aménagement a été pensé pour répondre à plusieurs usages complémentaires :
définir une véritable entrée de maison intégrant des rangements fonctionnels et un espace d’accueil confortable ;
créer un espace dédié au bien-être et à la récupération après l’effort, avec l’intégration d’un sauna et d’une salle de bain agréable ;
et enfin imaginer un espace multifonction, capable d’évoluer selon les besoins : chambre indépendante avec salle de bain attenante, espace de sport ou encore lieu de télétravail.
une buanderie a également trouvé naturellement sa place dans l’ensemble du projet.
L’un des principaux défis a été de concevoir une circulation fluide et intuitive entre ces différents espaces, pensée comme un véritable parcours reliant l’étage, la buanderie, l’espace sportif et le sauna.

Clair
Atelier d'architecture d'intérieur durable
© 2024. Tous droits réservés
07 59 53 02 03 | contact@clair-atelier.fr

















